Neubauvorhaben "Mehrfamilienhaus Gerberstraße 2"
Sehr geehrte Mieter*innen, Mietinteressentinnen und Mietinteressenten,
wir freuen uns Ihnen mitteilen zu können, dass wir planmäßig mit dem Neubauvorhaben "Mehrfamilienhaus Gerberstraße 2" begonnen haben.
Als bauführendes Generalunternehmen konnten wir die ortsansässige Firma Terpe Bau GmbH vertraglich binden.
Seit Freitag, dem 07.05.2021, werden die Tiefbauarbeiten durchgeführt.
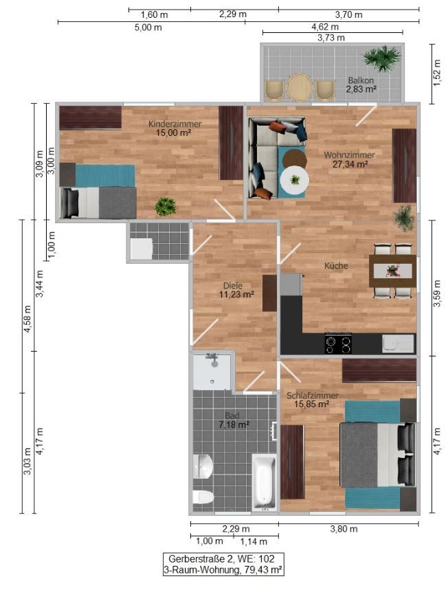
Vom Erdgeschoss bis zum vierten Obergeschoss entstehen vier 2-Raum-Wohnungen mit ca. 65 m² und vier 3-Raum-Wohnungen mit ca. 79 m².
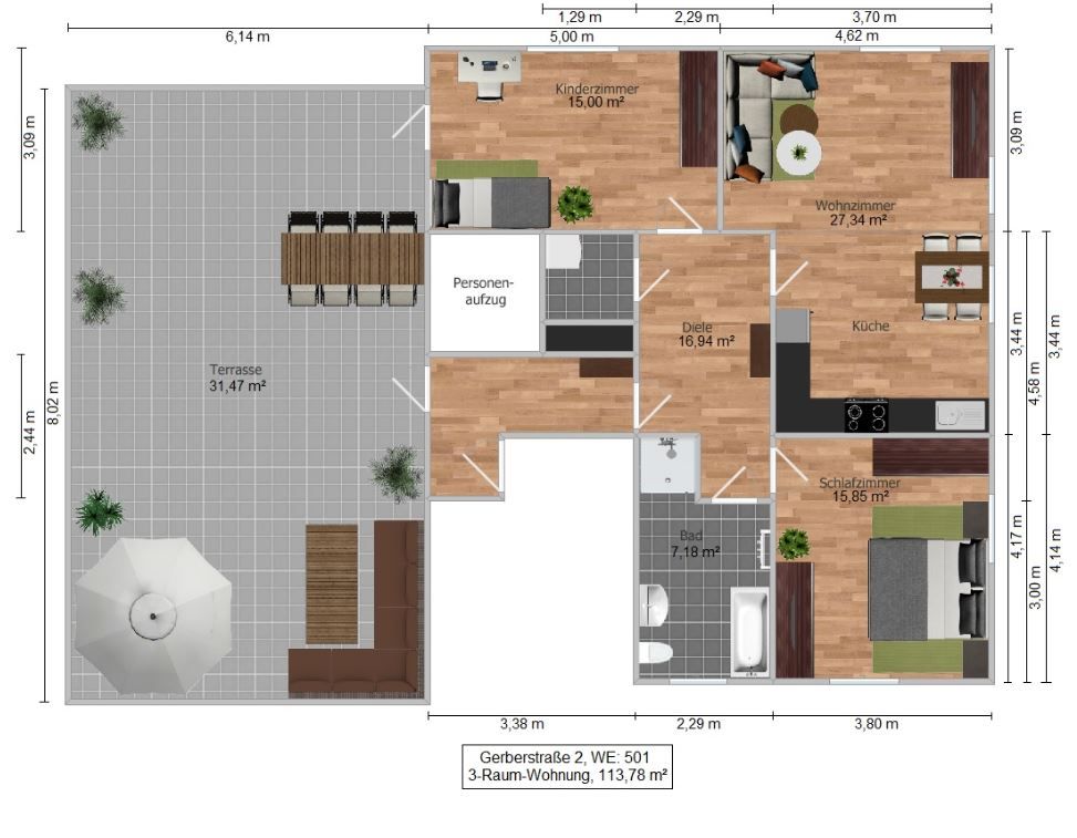
Im Dachgeschoss entsteht eine 3-Raum-Penthouse-Wohnung mit ca. 110 m² Wohnfläche inklusive einer großzügigen Dachterrasse mit einem herrlichen Blick in die Innenstadt von Spremberg.
Neben der exklusiven Lage in zweiter Reihe - direkt an der Spree - und der hervorragenden Anbindung an den öffentlichen Personen- und Nahverkehr sowie den naheliegenden Einkaufsmöglichkeiten, gewinnt das Objekt besonders an Attraktivität aufgrund der ebenerdigen Erschließung und dem Aufzug.
Sämtliche Wohnungen sind mit Fußbodenheizung ausgestattet, besitzen eine große Wohnküche, Bad mit Badewanne und Dusche sowie einen Balkon. Eine hochwertige Ausstattung und ein Stellplatz / eine Garage - direkt vor der Tür - runden das Angebot ab.
Selbstverständlich besteht bei Erstbezug auch die Möglichkeit einer Bemusterung.
Bei Interesse steht Ihnen unser Vermietungsteam gern telefonisch unter 03563 341-111 zur Verfügung oder Sie kontaktieren uns per E-Mail: vermietung@gewoba.info
Wir freuen uns auf Sie!
Ihr GeWoBa-Team
Bautafel

geplante Außenansichten des Mehrfamilienhauses




Bautenstand 10/2021




Grundsteinlegung 07/2021



