Karlstraße 3 - 5

Bauvorhaben
Karlstraße 3 – 5, 03130 Spremberg – Instandsetzung Fassade, Anbau von 24 Balkonen, Strangsanierung inkl. Umstellung der Heizungsanlage und Grundrissumgestaltung
Sehr geehrte Mieterinnen und Mieter,
wir freuen uns Ihnen mitteilen zu können, dass wir planmäßig mit den Sanierungsarbeiten in der Karlstraße 3 - 5 begonnen haben.
Seit Montag, dem 31.08.2020, werden die Betonsägearbeiten zum Einbau der neuen Balkontüren durchgeführt.
Ab Mitte September 2020 erfolgt sodann die Kompletteinrüstung des Objektes und anschließend die malermäßige Instandsetzung der Fassade inklusive der Umsetzung eines neues Farbkonzeptes.
Gleichzeitig werden neue Ankerplatten für die spätere Balkonanlage angebracht.
Anfang Oktober werden voraussichtlich die Fundamente für die Balkone gefertigt und eingebaut. Die Balkonanlage wird bis Ende November gestellt. Die Arbeiten an der Außenfassade und an den Balkonen wären damit in diesem Jahr abgeschlossen.
Parallel zu den Außenarbeiten wird das Objekt, beginnend mit der Nr. 5, komplett entkernt. Es werden im Anschluss neue Heizungs-, Wasser- und Stromleitungen eingebaut. Die Heizungsanlage wird von Einzelgasthermen auf Fernwärme umgestellt und es werden neue großzügige Grundrisse gestaltet.
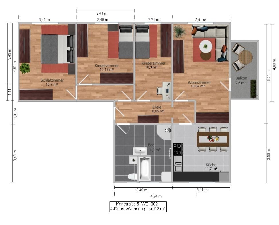
Im EG bis 1. OG entstehen 2-Raum-Wohnungen mit ca. 67 m² und 3-Raum-Wohnungen mit ca. 77 m² sowie 2-Raum-Wohnungen mit ca. 52 m² und 4-Raum-Wohnungen mit ca. 92 m² im 2. OG und 3. OG.
Sämtliche Wohnungen sind mit hochwertigem Vinylboden ausgestattet, besitzen eine große Wohnküche, Bad mit Badewanne und Dusche. Bei Erstbezug besteht auch die Möglichkeit einer Bemusterung.
Besonders an Attraktivität gewinnt das Objekt aufgrund seiner hervorragenden Anbindung an den öffentlichen Personen- und Nahverkehr, der Nähe zum Krankenhaus sowie durch die kurzen Laufwege zu den umliegenden Bildungseinrichtungen und Einkaufsmöglichkeiten.
Der Innenausbau wird voraussichtlich im I. Quartal 2021 abgeschlossen sein. Anschließend erfolgt die sofortige Neuvermietung. Die Wohnungen werden zu einer Netto-Kalt-Miete ab 6,80 €/m² vermietet.
Bei Interesse steht Ihnen unser Vermietungsteam gern telefonisch unter 03563 341-111 zur Verfügung oder Sie kontaktieren uns per E-Mail: vermietung@gewoba.info.
Wir freuen uns auf Sie!
Ihr GeWoBa-Team
Bautafel
